Warning: This program may not by suitable for all viewers. It contains real people engaged in political skullduggery, conspiracy and murder, presented in the form of a history lesson hidden inside a travel blog

One monument I particularly wanted to visit on this trip to Saqqara was the family mastaba of Mereruka, Waatetkhethor and their son Meryteti. I visited this tomb/temple complex on my first visit to Egypt and – like all tourists – was awed by the quality and beauty of the raised reliefs on the walls. Some of the panels are truly astounding – among the finest in Egypt. And the complex is huge: 32 stone lined rooms, 18 of which are decorated. At that time, I remember Mereruka being described a man from a common background, someone who had risen from humble beginnings to marry pharoah’s daughter and become the equivalent of the prime minister (usually translated as vizier).

Years later, I stumbled across the work of Naguib Kanawati, an Egyptian born Egyptologist who has been based for many years at Macquarie University in Australia. Kanawati’s specialty is the Old Kingdom (my era), which Djoser kicked off with construction of the Step Pyramid. Kanawati’s research has a political science slant with particular focus on the lives of the civil servants (my people) who managed the bureaucracy that enabled Old Kingdom rulers to build more than 30 enormous pyramids and associated mortuary complexes before the rullng house collapsed.
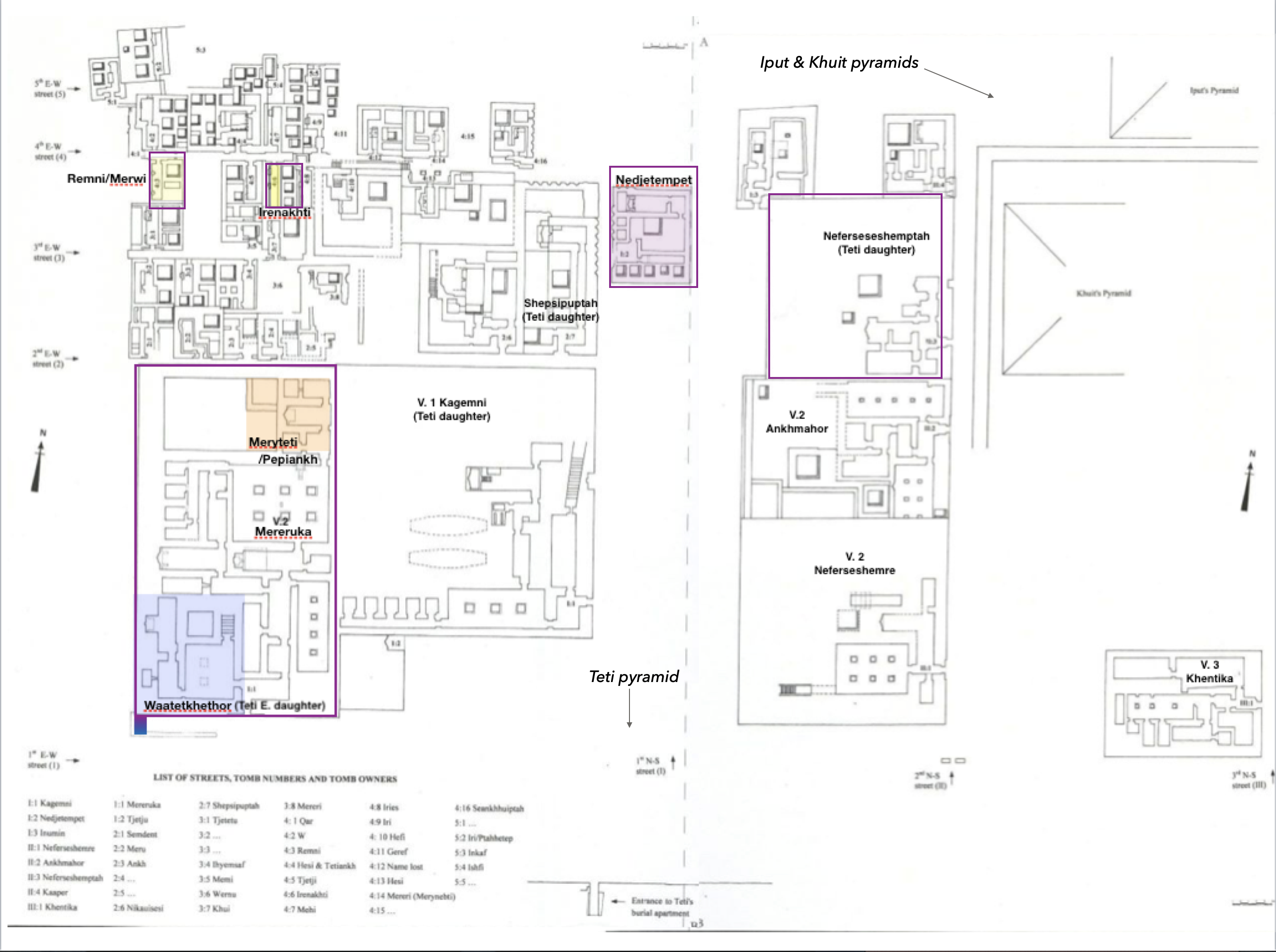
Kanawati and the generation of scholars he’s mentored have excavated or re-excavated just about every Old Kingdom private tomb in the cemeteries around Cairo and in the “provinces” – those “nobles tombs” in places like Akhmim, Abydos, Elephantine (Aswan) and Beni Hassan. Based on titles, biographies and family relationships, they have traced connections across multiple generations of family members who served successive rulers over from 300+ years – including the family of Mereruka. Kanawati and his team have extensively excavated both the Teti cemetery at Saqqara, where Mereruka and his immediate family are buried, and the western cemetery at Giza (right next to the Great Pyramid), where Mereruka’s ancestors are buried.

In the course of this work, Kanawati became particularly fascinated the reign of Teti, Mereruka’s patron and father in law. Teti (“He Who Pacifies the Two Lands”) came to the throne about 2300 BCE, near the end of the Old Kingdom, and Mereruka was the power behind his throne. Teti may have taken the throne in a coup, and he some 20 years later he was “murdered by his guards”(according to Manetho, an Egyptian priest who wrote a history of Egypt in the 3rd century BCE). Ancient Egyptians never included ruler assassinations in the official records (writing had magical powers, so bad things were not recorded to prevent their recurrence), but Kanawati has found archeological evidence that supports the assassination claim: out of 38 officials buried in the Teti cemetery, 38 tombs show evidence of punishments intended to continue into the afterlife – the verdict reserved for only the most heinous of crimes.
When I read Kanawati’s book Conspiracies in the Egyptian Palace, I was hooked. I spent several months researching Mereruka and his family in the context of their times, with an in-depth look at the layout and reliefs in the mastaba, then summarized my research in a presentation to my fellow local Egyptology nuts (Meet the Seshemnefers). On my last trip to Cairo I got to visit the Teti cemetery (now off limits to visitors again), but I wasn’t able to visit the mastaba, so this time a visit to Mereruka and Waatekhethor was on top of the list. Here is where the Teti cemetery is located relative to Djoser’s Step Pyramid.

This is what the Teti cemetery looked like when it was first excavated in 1926, with the mastaba of Mereruka in the left middle.

And here is what the mastaba looks like today. As you can see from the 1926 photo, the upper portion of the building collapsed. Restoration work put a roof over the remains, but there are a lot of headless images in the reliefs inside.



The architectural layout of the mastaba recreates aspects of the (no doubt palatial) home that Mereruka and Waatetkhethor shared, plus mortuary chapels for all 3 family members. Thus, the inhabitants went to eternity equipped with all the comforts of home plus ample space for friends, loved ones and the curious to feed their souls in the afterlife through offerings and simply saying the names of the deceased while gawking at the magnificence of the edifice.
In the plan below, rooms outlined in yellow are public spaces, mirroring the kinds of spaces found in wealthy homes. Waatetkhethor’s reception room is in the bottom left, while Mereruka’s much grander hall is in the top left. Reliefs in the long hallway reflect everyday activities on their estate (like farming, making wine, raising livestock, fashioning furniture and jewelry in workshops) plus scenes of excursions on the Nile or into the desert for hunting, fishing and fowling.
The long room outlined in blue reflects private spaces where the family would retreat to spend time together, including some bedroom scenes.
Rooms outlined in purple are chapels where offerings were made for Waatetkhethor (bottom left) and Mereruka (middle). The chapel for their son Meryteti was an add-on (not shown on this plan), through a door chiseled into the upper right hand corner of his father’s hall.

In the building’s entry hall, visitors are greeted by one of the most magnificent set of reliefs in all of Egypt. These scenes of the couple boating on the Nile, surrounded by retainers, are a primary reason for this mastaba’s fame. Here you see the whole panoply of Nile river life carved in stone, created with such art and accurate detailing that you can actually identify species.






The following image details are from a 1937 publication of the mastaba by U. Chicago’s Oriental Institute (recently renamed the Institute for the Study of Ancient Cultures). The Institute’s artists captured a lot of color that has been lost today.

Another famous relief is this scene of herdsmen trying to get a bunch of cows to swim through a marsh (presumably to move to better pasture) by tying a rope around the lead cow’s calf and pulling it through the water. The cows aren’t stupid – the reason for the their caution is shown lurking in the shallows below the reed boat.

Scattered throughout the reliefs are charming vignettes, executed with exquisite artistry. Mereruka could afford the best – for a while, anyway.







Mereruka thought a lot of himself, as his six pillared grand hall demonstrates. The hall is positively pharaoesque in scale. One’s journey through the entry and down the long, long hallway, is meant to intimidate: on entering the grand hall, you are faced with a larger-than-life statute of Himself in full royal pose. (Note: It’s very difficult to get good photographs in the mastaba, especially with a phone camera. I’m posting some pictures of the grand hall taken by the Maidan Project, an interesting site to explore if you are interested in ancient middle eastern history.)





So how did Mereruka manage to rise to a position where he commanded so much wealth and influence? There were three main reasons: He married the Boss’ daughter, had an extensive network of family connections going back generations, and lived at a time when Egypt was gradually sliding into poverty and chaos. Let’s start with the Woman Behind the Man.
Seshseshet Waatetkhethor was the eldest daughter of Teti and his principal queen, Iput. (All of Teti’s daughters were named Seshseshet, after their grandmother.) Teti was not related to his predecessor, Unas and he appears to have have come to power by marrying Iput, Unas’ daughter. If there was no male heir, then marriage to a royal daughter was a legitimate path to the throne. Archeological evidence indicates that Unas’ had a male heir and at least one daughter who died young and were hastily buried in tombs confiscated from Unas’ two viziers (the highest ranking officials in his court). Tomb confiscation was the ultimate punishment in ancient Egypt, because it removed the felon’s pathway to an eternal afterlife. Only the most heinous crimes – like murdering a ruler or royal heir – were punished through tomb confiscation (presumably following a rather grisly execution).

Iput was not Unas’ only daughter, and there were likely others fighting to succeed Unas, so Teti needed support from powerful families to secure his throne. Teti’s highest officials, including Mereruka, had also served under Unas and Unas’ predecessor, Izezi, and Teti concentrated most of the government’s authority in these men. Most were married to Teti’s daughters (and possibly granddaughters). Many of these men had previous families and heirs who were displaced through these marriages, superseded by younger, royal half siblings. While Teti may have secured the throne for himself through these arrangements, the bitterness of displaced sons came back to bite his successor – the third of Kanawati’s ’s conspiracies in the palace.

Waatetkhethor was married to Mereruka as a child or very young woman. In the image below (from a relief in Mereruka’s part of the mastaba), we see her shown with the fillet & streamer, accessories worn by girl children. Mereruka was middle aged and the father of four living sons at the time of this marriage.

The couple appears to have been childless for some years, possibly due to Waatetkhethor’s young age at marriage. (Their son was added to Mereruka’s chapel after completion of most decorations.) For many years, Teti had no male heir. When Waatetkhethor gave birth to her son, Meryteti, he became heir apparent to his grandfather. Meryteti’s birth gave Mereruka added status, since he was now both Teti’s vizier (along with the 79 other titles he claimed) and the father of the heir to the throne.


In addition to marrying the Boss’ daughter, Mereruka had plenty of family connections to draw on: three generations of government officials steadily climbing the bureaucratic ladder. Both men and women claimed titles showing their connection to royal service. The Seshemnefers appear to have been a close family, judging by depictions in their tombs – parents, wives and siblings are shown in the tombs of all four generations – that’s what makes it possible to trace them.
Mereruka’s great grandfather, Seshemnefer 1, probably started his career around 2420 BCE, under Sahure. He served in the public works side of administration, responsible for provisioning supplies, construction and labor. He rose to a position just below vizier (and possibly higher) and was buried in a tomb in the western cemetery at Giza (next to the Great Pyramid). Seshemnefer 1 had five sons and four daughters.)



Mereruka’s grandfather, Seshemnefer 2, began his career under Niussere (~2470 BCE) and died under Izezi (Unas’ predecessor). He held many of the same titles as his father (text in blue), and probably inherited them. He served as Overseer of the House of Weapons, Overseer of All Works of the Ruler, and “Privy to the Secrets” – a title that appeared with increasing frequency as Egypt’s economy began to tank. Seshemnefer 2 had two daughters and three sons.


Mereruka’s uncle, Seshemnefer 3, began his career under Izezi (circa 2350 BCE) where he rose to be a vizier. One of his titles was “King’s Son of His Body,” a title sometimes given to non-blood relatives as a mark of special favor. He had two sons and one daughter, and probably got Mereruka his first job.

Seshemnefer 3 died sometime during the reign of Unas. Like his father, grandfather and uncles, he was buried in the Giza western cemetery. However, his mastaba managed to survive relatively unscathed until a German team dismantled it and removed his funerary chapel to the University Museum of Tubingen.



Mereruka’s father, Meruka, appears to have been a mid-level bureaucrat whose titles indicate descent from Khufu. His mother, Nedjetempet, was Seshemnefer 3’s sister. The couple had nine sons, including Mereruka.
Nedjetempet’s name means “Gift from Heaven” and and she must have been a Force. She was a high-ranking priestess in several cults as well as an “Acquaintance of the Ruler.” She is shown with Mereruka multiple times in his tomb, and is buried near him – one of only two women buried in the Teti cemetery. (The other is in a confiscated tomb and has her own story to tell.) Most interestingly, Nedjetempet’s tomb is located smack dab in the middle of the main roadway through this city of the dead.
The tomb had five rooms, was constructed of mud brick (containing stone and pottery filler) with some stone elements (entrance lintel, false door & its niche). Walls were probably whitewashed and painted. Her tomb appears to have been planned as a family tomb with accommodations for a number of Mereruka’s siblings or nephews/nieces. The original plan appears to have contained 5 shafts, although 11 were ultimately dug. She was buried in a limestone sarcophogus, and her skeletal remains were found inside. (No evidence of mummification.) She was 50+ years at death, stood < 5” tall and her teeth were worn down to the gums.


Very little restoration has been undertaken, as you can see.


And now the final, grim force behind Mereruka – and the Seshemnefers – rise to power: economic decline. Old Kingdom Egypt’s prosperity peaked around the end of the 4th Dynasty, not long after completion of the smallest of the three pyramids at Giza (Menkhare’s).

Djoser started a trend, and after his successful completion of the Step Pyramid every ruler had to have one. Khufu kick-started the cult of Re (a sun god) with the Great Pyramid, and successors tried to out-do one another by adding sun temples dedicated to Re’s worship.

Pyramid and temple construction required an immense amount of materials, labor and management skills.


Once they were built, each complex required even more resources to function. Although we experience the pyramids today as lonely outposts situated in a desolate and unpopulated landscape, in the Old Kingdom every pyramid and Sun Temple was the site of a thriving community. Each pyramid and temple had an associated mortuary temple, staffed by a cadres of priests (full and part time) responsible to ensure the ruler’s comfort in the afterlife through offerings made every day. The priests had servants to do the heavy work (baking, brewing, cooking, weaving, cleaning) and both priests and workers had families living nearby. Because these pyramid complexes were situated at the edge of the desert, all of the communities’ materials and food had to be brought to the sites by yet more workers. There were storehouse filled with the best grain, fruit, veg and beef, which the community got to eat after the gods had eaten their (virtual) share. (It was a good gig.) In addition, each complex had to have armed guards because – well, there was a lot of gold in them thar hills.


So the ruling house was overextended trying to keep all these complexes up and running. To make things worse, agricultural productivity steadily declined over the Old Kingdom’ s ~ 400 years, in parallel with declining flows from Egypt’s lifeblood, the annual Nile floods.

the While a few families, like the Seshemnefers, were able to take advantage of this turmoil and increase their wealth, most everyone else lost ground and many sunk into poverty. (Sound familiar? Climate and economic disparity, humanity’s eternal story.)
The chart below traces the Old Kingdom’s economic decline by looking at who could afford to build tombs. Every Egyptian wanted a tomb – it was their house for the eternal afterlife. In the early part of the Old Kingdom even the lowest level of the middle class could afford a family tomb. Over time, the lower, then the middle, then the upper middle class lost the economic means to build tombs. By Mereruka’s lifetime, only a very few people at the very top of the economic food chain could build a house for eternity.

As the economy declined, there is evidence of the increasing reliance on guards in both royal and elite households. Guard positions were inherited and held within families, including families of trusted high officials. It was primarily a male position, but there were some female guards, possibly serving in the women’s house. There is a large concentration of 5th-6th dynasty guards’ tombs at Giza, as well as in the Unas and Teti cemeteries.

Izezi a created an administrative department with a hierarchy of overseers, inspectors, assistants, and guards, all seemingly focused on protection of the ruler. Teti increased the number of guard positions for his palace and funerary complex, and their duties placed them closer to him – responsible for feeding, bathing, clothing the royal body.
At least seven of Mereruka’s brothers and one son held guard positions. Guards (male and female) appear with Mereruka and Waatetkhethor in every scene in which they are depicted as being outdoors (watching fisherman dragging their nets, farmers harvesting their grain, traveling in boats and chairs) and even in their private bedchamber.

Kanawati sees other evidence of political turmoil in the many scenes of violence found in Mereruka’s mastaba – something not seen in earlier tombs.
The scenes below are from the reliefs of boating on the Nile found in the entry (A1). The first scene shows an unusual number of guards accompanying Mereruka and Waatetkhethor on this boating expedition, and the guards are attacking hippos in the river with savage violence. The second scene shows a crocodile preying on a baby hippo that has just been born. The baby hippo is in the crocodiles jaws, being devoured – an unusual image.


In a desert hunt scene in the long hallway, the couple watches as nine dogs tea apart a Nubian ibex. This is the first time such a ferocious scene is portrayed in a tomb, and it is later copied by others. Usually dog hunting scenes have one or two dogs attacking the prey – letting nine dogs loose on the victim seems especially aggressive.

Finally, Mereruka’s mastaba is the first to show corporal punishment against offenders, and other Teti officials follow his lead. In the scenes below, we see men with batons bringing tax evaders before scribes for judgment. These individuals are being severely punished, held against a whipping post and beaten.


Given this environmental, economic and political background, it’s easy to believe that there were violent attempts to change the people at the top. Remember that Teti was reportedly murdered by his guards, and Kanawti found substantial evidence to support this claim in the cemetery where Teti’s officials were buried. There are isolated cases of evidence of punishment in tombs throughout Egyptian history, but never in such concentrations of evidence as is present in the Teti cemetery.
In ancient Egypt, some of the punishments doled out were meant to endure into eternity. Confiscating a tomb was the ultimate punishment, but malefactors could also be punished by maiming their carved images (probably mirroring punishments given in life) or by erasing figures and their names entirely. Each of these punishments would rebound in the afterlife, depriving the deceased’s soul of body parts and/or the ability to receive the nourishment necessary for eternal life.

Tombs of many of the officials closest to Teti show evidence of punishment to the tomb owner or his sons and dependents. Kanawati suggests that there may have been some form of revolt led by elder sons disinherited by father’s marriage to a Teti daughter. Pepi 1 employed sons of his father’s high officials as guards and in performing personal duties and sons of these men – including Mereruka – were chiseled out of their father’s tombs. If you look closely, you can see some of these “disappeared” figures in Mereruka’s mastaba.


Mereruka experienced a reversal in fortune sometime before his death. The later stages of work in his portions of the complex are not at the same level of artistic quality as the earlier work. Teti and Iput finally had a surviving son late in Teti’s reign, who replaced Meryteti as presumptive heir (and eventually came to the throne as Pepi 1). Mereruka lost status with Pepi’s birth since he was no longer the father of the heir.


Once Meryteti was displaced by his younger uncle, he no longer had claim to a royal tomb, so his chapel was probably added to Mereruka’s at that time. The quality of reliefs in Meryteti’s three rooms are modest to poor. Meryteti’s chapel and sarcophagus were taken over by his elder half brother from Mereruka’s first marriage, Memi/ Pepyankh, but Meryteti regained the chapel later in his uncle’s reign. His names were reinscribed, removing his identification as king’s son and indicating his descent from Teti as a grandson.
Pepi 1, Teti’s son, came to the throne as a child. His mother, Iput, likely ruled on his behalf for the first years of his reign.

However, Pepi 1 did not immediately succeed his father. Teti’s immediate successor, Userkare, does not appear to have been related, and he ruled for a very short time, probably only a year or two.  Userkare is mentioned in Egyptian king lists, but his name does not appear in any officials’ tombs of Teti or Pepi 1. However, there is evidence of officials chiseling out Teti’s name under Userkare, then changing it back to Teti under Pepi 1.  If Userkare was a usurper, and his usurpation was supported by some officials, they were probably punished under Pepi 1/Iput, and some of the tomb punishments we see may be related to support for the usurper.

(Netflix) c. 2014 CE
Sometime during Pepi 1’s reign, there was a secret trial involving a royal wife. We know this from the tomb biography of Weni, who served under Teti, Pepi 1 and Pepi’s successor. In his autobiography Weni states:
When there was a legal case in secret…
against the royal wife,
never before had anyone like me heard the secrets of the
[house of women]…
Weni was superintendent of palace guards, with responsibility for the women’s house (among others) at time of the trial. He was appointed as judge/prosecutor representing the king, and he reported that all viziers and other officials were excluded from the trial – a curious development, since the see vizier was the chief judge. This queen may have been the mother of Userkare. Teti had three “eldest daughters of his body,” suggesting that he had three wives. If Userkare was Teti’s son by before Teti took the throne, he was not royal.
Pepi 1’s political turmoil didn’t end with the harem conspiracy. The name of one of Pepi’s vizier’s was “erased” from official documents. Kanawati suggests that Rawer was part of a revolt by elder sons who had been disinherited when their fathers made second marriage to daughter of Teti.
The “erased” vizier was named Rawer – a common name in the Seshemnefer family. A cousin of Mereruka’s named Rawer names a “Seshseshet” wife in his tomb.Â
Isn’t Egyptology more fun with soap operas?
Â


